Varenr.: 9086200
Varenr.: 9086200
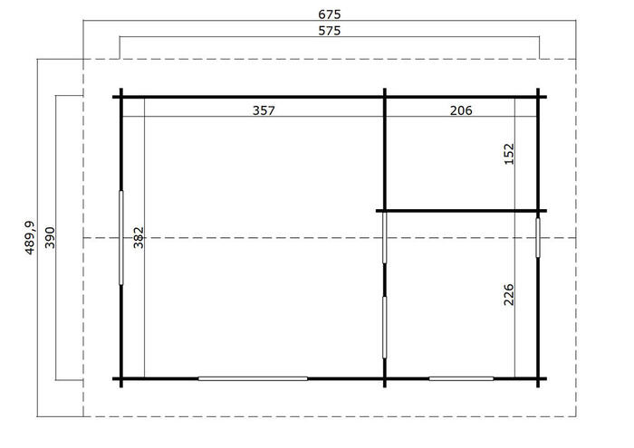
  • Caroline Set Silver bjælkehytte med klassisk sadeltag og flere rum
  • Velegnet til fx gæstehus, hobbyrum, værksted eller kombineret opholds- og arbejdsrum
  • Indrettet med tre separate rum samt hems med adgang via stige
  • Dobbeltdør, enkelt dør og flere vinduer giver et godt lysindfald i rummene
  • Solid konstruktion i 40 mm vægtykkelse med vindtæt chalet-samling
  • Mål: 390 x 575 cm, indvendigt areal 21,66 m² og kip-højde 330,6 cm

Specifikationer

Type Værdi
Areal, gulv 21,66 m²
Antal m2 på taget 37,12 m²
Dybde 575 cm
Bredde 390 cm
Højde til kip 330,6 cm
Dybde på udhæng 50 cm
Væghøjde 233,7 cm
Mål, dør 1494 x 1957 mm

Dokumentation

Producent

Lasita Maja AS
TÄHE 116
EE-51013 Tartu
kundeservice@jemfix.com