Varenr.: 9086204
Varenr.: 9086204
  • Caroline 2.3 bjælkehytte med klassisk sadeltag og flere rum
  • Velegnet til fx gæstehus, fritidsrum, hobbyrum eller hjemmekontor i haven
  • Indrettet med flere separate rum samt hems med adgang via stige
  • Stor foldedør i termoglas giver en bred åbning og masser af lys i opholdsrummet
  • Solid konstruktion i 40 mm vægtykkelse med vindtæt chalet-samling
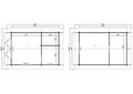
  • Mål: 390 x 575 cm, indvendigt areal 21,66 m² og kiphøjde 330,6 cm

Specifikationer

Type Værdi
Areal, gulv 21,66 m²
Antal m2 på taget 37,12 m²
Dybde 390 cm
Bredde 575 cm
Højde til kip 330,6 cm
Dybde på udhæng 50 cm
Væghøjde 233,7 cm
Mål, dør 2600 x 1957 mm

Dokumentation

Producent

Lasita Maja AS
TÄHE 116
EE-51013 Tartu
kundeservice@jemfix.com