Fibercement
Fibercement er en stærk og vejrbestandig løsning til facadebeklædning, der kombinerer holdbarhed med et stilrent udtryk. Materialet kræver minimal vedligeholdelse og modstår både fugt, råd og skadedyr. Med de rette samleprofiler sikrer du en flot og præcis montering, der giver en ensartet og professionel finish. Perfekt til både nybyggeri og renovering.Fibercement og tilbehør
Trænger dit hus, dit sommerhus eller havens anneks til ny facadebeklædning? Så er facadebeklædning i fibercement et godt valg. Fibercement er nemlig et robust, stærkt og vejrbestandigt materiale, der er ideelt at bruge til at beklæde bygninger, så de bedre står imod vind og vejr. Fibercement anvendes også på gavle og på vindskeder samt til garager og carporte.
Plader i fibercement har mange fordele: før det første er de nemme at arbejde med. For det andet er nemme at montere. Og for det tredje er de utrolig nemme at vedligeholde. Derfor er fibercement er fantastisk materiale til dig, der gerne vil have en flot ny facadebeklædning, men som samtidig gerne vil stå tilbage med et resultat, der er nemt at vedligeholde og rengøre. På den måde slipper du nemlig for at skulle skifte facadebeklædning hvert eller hvert andet år.
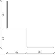
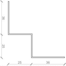
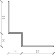
I jem & fix har vi et kæmpe udvalg af plader i fibercement. Vi har fibercement i flere forskellige farver, mål og prisklasser, og du kan se hele vores sortiment her på siden. Det er også her du finder alt i udstyr og tilbehør til fibercement, som fx diverse profiler, samlemuffer samt folie og reparationslak, så du hurtigt kan udbedre eventuelle små skrammer.