Columbus er et stort og åbent redskabsrum/pergola fra Lasita Maja med et grundareal på 12,26 m². Den giver masser af plads og er velegnet til mange forskellige formål i haven. Redskabsrummet/pergolaen kan bruges til opbevaring af fx brænde, cykler, havemøbler eller haveredskaber. Den kan også fungere som et overdækket opholdssted, hvor du kan tage en pause i skyggen eller finde læ, når det regner.
Redskabsrummet/pergolaen leveres som et komplet byggesæt, hvor du får alle de nødvendige dele med i pakken. Det inkluderer vægge, tagkonstruktion, tagbrædder, tagpap samt de skruer, der skal bruges til montering. Du skal selv samle redskabsrummet/pergolaen trin for trin, og alle hoveddele er med fra start.
Det er vigtigt, at den bliver monteret på et fast og stabilt underlag, så den står sikkert og holder godt i længden. Den skal fastgøres forsvarligt, så den står solidt, også når det blæser eller under påvirkning af vejr og vind.
Der følger ikke værktøj med, så du skal selv have det nødvendige klar, inden du går i gang med opsætningen. Det anbefales at bruge almindeligt håndværktøj som fx en boremaskine og et vaterpas, så du kan sikre, at alle delene bliver monteret korrekt og i vater.
Columbus redskabsrum/pergola fra Lasita Maja er en praktisk løsning til dig, der gerne vil have både opbevaringsplads og et hyggeligt, overdækket hjørne i haven.
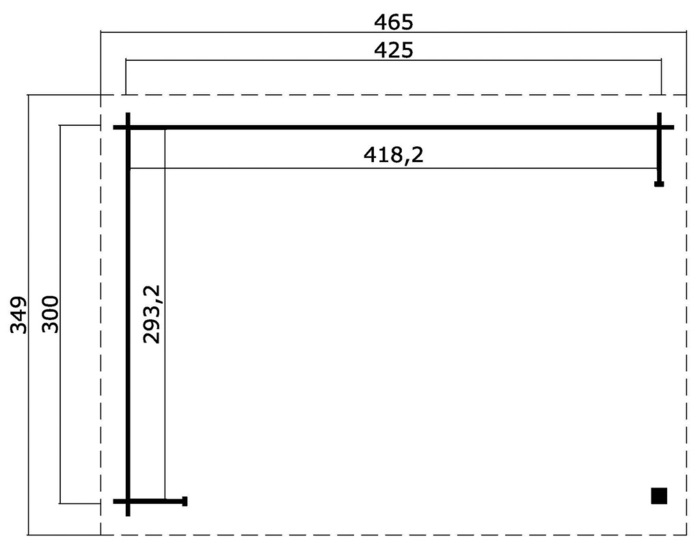
Specifikationer:
- Bredde: 300 cm
- Dybde: 425 cm
- Højde til kip: 254,1 cm
- Væghøjde: 222,3 cm
- Gulvareal: 12,26 m²
- Udhæng foran: 25 cm
- Tagareal: 16,3 m²
- Taghældning: 4,4°
- Vægt: 602 kg